Aprašymas
Informacija
Užstatymo plotas
230,02 m²
Naudingas plotas
92,52 m²
Statinio ilgis
21,45 m su terasa
Statinio plotis
10,93 m su terasa
Pastato aukštis
5,15 m
Nešildomo sandėliuko plotas
20,21 m² arba 12,07 m²
Terasos plotas
87,08 m²
Energinė klasė
A++
Paskirtis
Gyvenamoji
Data
2023

Architektūra
Tipinis gyvenamo namo projektas „Mažasis garnys“ (A++ klasė) subalansuotas 2-3 asmenų šeimai ir situacijai, kai sklypas „nespaudžia”, t.y. galima maksimaliai išnaudoti erdvę ant žemės – tiek viename aukšte išdėstytoms gyvenamojo namo patalpoms, tiek plačiai, iš visų pusių pastatą juosiančiai pastogei.
Pastatas orientuotas taip, kad pietų ir vakaro saulė šildytų terasą ir svetainę. Šiaurinėje pastato dalyje suprojektuotos įėjimas į pastatą, pagalbinės ir sanitarinės patalpos. Miegamieji numatyti pietinėje namo dalyje.
Pastato fasadams buvo parinkta medinė apdaila su vėdinamu fasadu. Galėsite rinktis iš kelių apdailos variantų pagal skonį ir kainą. Stogo danga – valcuoti dažyti skardos lakštai.
Visas namo projektas sukurtas ir apgalvotas taip, kad jame būtų galima maksimaliai pritaikyti standartizuotas medžiagas, o unikalūs sprendimai būtų palankūs kliento piniginei.
Autoriai: Rūta Burokaitė, Kristina Judickienė, Arūnas Želvys, Liudvikas Selmistraitis, Indrė Meidutė, Marija Savickienė, Guoda Bardauskaitė
Interjeras
Tam, kad būtų lengviau kurti savo namus, kartu su projekto byla galite įsigyti ir interjero techninius brėžinius. Jie palengvins komunikaciją su statybininkais, visam procesui suteiks aiškumo, padės išvengti klaidų, o namo šeimininkas galės mėgautis renkant namų spalvas ir aksesuarus.
Interjero techninį projektą sudaro šie brėžiniai:
- baldų ir pertvarų planas,
- santechnikos taškų planas,
- grindų dangų ir kiekių planas,
- sienų apdailos ir kiekių planas,
- šviestuvų tipų ir valdymo planas,
- suvestinis lubų planas (jame matysite difuzorius, vėdinimo šachtas, priešgaisrinius daviklius),
- vidaus durų specifikacijas,
- virtuvės ir vonios kambarių išklotines,
- interjero vizualizacijas.

Projekto sudėtis
Tipinius projektus pradėjome ruošti vedini vienos minties: „kad gera architektūra būtų įperkama kiekvienam“. Dėl šios priežasties, savo projektus parengėme maksimaliai išsamiai, kad juose rastumėte viską, ko reikia sklandžioms ir kokybiškoms namo statyboms.
Be jau apaklbėtos architektūros ir interjero dalies, dar parengėme ir kitus labai svarbius namo statyboms projektus:
Konstrukcijų projektas. Tai yra privalomas dokumentas sėkmingoms namo statyboms ir pridavimui. Konstruktorių parengtoje byloje matysite esminius pastato konstruktyvinius spreninius, apkrovų skaičiavimus, konstruktyvinius mazgus ir brėžinius, reikalingus namo statyboms. Projektas yra parengtas karkasiniam arba mūriniam (blokelių) namui. Konstrukcijų dalies projektą rengė įmonė „UAB Ekspapro“.
ŠVOK techninis darbo projektas. Šį projektą parengė tikri vėdinimo ir šildymo ekspertai – įmonė „UAB Šilumos namai“. Projekte rasite aiškinamajį raštą, profesionaliai pariktą įrangą ir projekto brėžinius (pilnas vėdinimo, šildymo ir oro kondicionavimo sistemų paketas).
Gaisriniai skaičiavimai. Ši dalis būtina, norit saugiai gyventi nuosavame name. Šioje byloje yra aprašyti ir apskaičiuoti visi būtini saugumo reikalavimai ir atstumai, kurie užtikrina priešgaisrinę saugą.
Energetinio naudingumo ataskaita. Parduodamoje projekto byloje yra atlikti ir namo energetiniai skaičiavimai. Pastatas suprojektuotas taip, kad atitiktų A++ energinės klasės reikalavimus. Šis dokumentas yra būtinas priduodant namą.
Santechnikos gaminių sąmata. Mūsų partneriai įmonė „Aqua home“ parengė du pasiūlymus vonios kambarių sprendiniams. Kiekvieną dieną su santechnika dirbatys spcialistai parinko kokybiškus įrenginius dviem kainų grupėms: ekonominiam ir premium sprendimui. Šiuos pasiūlymus gausite kartu su techniniu interjero projektu.
Šviestuvų sąmata. Šviestuvai paprastai būna didžiausias klientų galvos skausmas. O kad taip nebūtų, įmonė „Delight“ suskaičiavo reikalingų šviestuvų kiekius, parinko lemputes ir apskaičiavo sąmatą. Visą tai gausite įsigiję mūsų techninį interjero projektą.
O tam, kad suprastumėte, kiek preliminariai gali kainuoti namo statybos, mūsų partneriai karkasinių namų statybos įmonė Karkasa ir skydinių namų statybos įmonė More than Home suskaičiavo preliminarią namo statybų kainą. Sąmatą galite rasti žemiau, paspaudę aktyvų mygtuką.
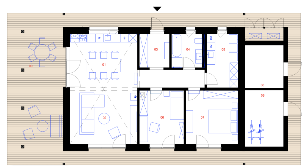
Namo planas
Pastatas yra dviejų miegamųjų, 92 kv. m. ploto. Gyvenamųjų patalpų išplanavimas gali pasirodyti labai elementarus, tačiau jis ilgai diskutuotas komandoje ir apgalvotas taip, kad funkcionaliai išnaudotų kiekvieną kvadratinį metrą bei prisitaikytų prie ekonomiškos namo konstrukcinės schemos.
Namo stoginė su sandėliuku gali būti komplektuojama su pasirinkta pagalbinių patalpų bloku: stogine vienam arba dviems automobiliams, vienu arba dviem mažesniais sandėliukais.
Dokumentų paruošimas statybos leidimui gauti
Prie šio projekto taip pat galite įsigyti ir dokumentų statybų leidimui gauti (SLD) paruošimo paslaugą. Kvalifikuoti specialistai paruoš visą dokumentų bazę, sukoordinuos reikalingus subrangovus taip, kad statybos leidimas būtų gautas greitai ir efektyviai.
SLD gavimo paslaugą sudaro:
- subrangos koordinavimas,
- dokumentų rinkmenų paruošimas,
- sklypo plano paruošimas (minimali dalis reikalingas SLD gavimui),
- suvestinio sklypo plano paruošimas,
- kliento atstovavimas institucijose (suteikus įgaliojimą),
- projekto pateikimas institucijų derinimui ir SLD gavimui
Paslaugos, kurios į SLD kainą neiskaičiuotos:
- vandentiekio ir nuotekų dalies projektas (iki 300 eur + PVM),
- topo nuotrauka (180-450 eur),
- grunto tyrimai (priklauso nuo situacijos, 850-1600 eur),
- kitos projekto dalys pagal situaciją – dujotekio, ŠVOK, melioracijos įrenginių iškėlimo projektavimas (jei reikia),
- vandens gavybos dalis (jei reikia apie 120 eur),
- pamatų projekto keitimas dėl netipinio grunto (jei reikia),
- viešinimas (jei reikia).
Klausiate — atsakome
Ką gausiu nusipirkęs projektą?
Nusipirkę projektą gausite 4 bylas:
- architektūros dalį,
- konstrukcijų dalį (mediniam karkasui arba blokeliams),
- gaisrinės saugos projektą,
- energinius skaičiavimus, įrodančius A++ klasę.
Papildomai gausite:
- ŠVOK (šildymas ir vėdinimas) dalies projektą su konkrečių gaminių pasiūlymais ir sąmata (parengė įmonė „Šilumos namai”).
Ar šios apimties užtenka pasistatyti namą?
Tokios projekto apimties užtenka pilnai pastatyti namą su daline apdaila.
Kadangi labai mylime savo klientus, papildomai dovanojame su savo partneriais Delight, Aqua home ir Šilumos namai parengtus konkrečių produktų pasiūlymus su specialiomis kainomis.
Kokia yra šio projekto statybų kaina?
Skirtingi rangovai gali pateikti statybos kainas besiskiriančias 1,5-2 kartus, tad galutinė statybos kaina priklausys nuo rangovo pasirinkimo ir įvairių jūsų priimamų sprendimų statybų eigoje. Kad galėtume jums bent apytikriai atsakyti į šį klausimą, karkasinio namo sąmatą, parengtą įmonės „Karksa“, galite atsisiųsti čia.
Ar galite šiek tiek pakeisti tipinį projektą, kad jis geriau atitiktų mano poreikius?
Mūsų tipiniai projektai yra rengiami labai detaliai, prie jų dirba net keletas skirtingų specialistų: architektas, konstruktorius, interjero projektuotojas. Todėl bet koks pakeitimas projekte mums reiškia dideles laiko sąnaudas ir išaugančią klaidų tikimybę. Dėl to tipinių projektų nekeičiame.
Jeigu norimas pakeitimas tikrai nedidelis (pvz. pertvarų plano koregavimas), paliekame laisvę jums įsigijus projektą improvizuoti patiems savo atsakomybe statybų metu. Jeigu norima didesnio pakeitimo (pvz. papildomas kambarys), rekomenduojame pas mus užsisakyti individualų projektą, kurį galime parengti remdamiesi jums patinkančio namo estetika.
Ar galite šiek tiek pakeisti tipinį projektą, kad jis geriau atitiktų mano poreikius?
Mūsų tipiniai projektai yra rengiami labai detaliai, prie jų dirba net keletas skirtingų specialistų: architektas, konstruktorius, interjero projektuotojas. Todėl bet koks pakeitimas projekte mums reiškia dideles laiko sąnaudas ir išaugančią klaidų tikimybę. Dėl to tipinių projektų nekeičiame.
Jeigu norimas pakeitimas tikrai nedidelis (pvz. pertvarų plano koregavimas), paliekame laisvę jums įsigijus projektą improvizuoti patiems savo atsakomybe statybų metu. Jeigu norima didesnio pakeitimo (pvz. papildomas kambarys), rekomenduojame pas mus užsisakyti individualų projektą, kurį galime parengti remdamiesi jums patinkančio namo estetika.
Kokias formatais ir per kiek laiko gausiu projektą?
Pilną tipinio pastato projektą gausite iš karto atlikę pirkimą. Projekto dalys automatiškai bus atsiųstos į jūsų kompiuterį pdf. formatu.
Esant poreikiui savo klientams siunčiame ir popierinę projekto versiją.
Kas įeina į konstrukcijų projektą?
Į konstrukcijų projektą įeina statyboms reikalinga ir privaloma minimali konstrukcijų dalis. Šioje dalyje rasite pagrindinių apkrovų skaičiavimus, aiškinamąjį raštą, projekto brėžinius, išspęstus komplikuotus konstrukcijų mazgus.
Konstrukcijų projekte rasite šiuos brėžinius:
- polių planas ir armavimo specifikacija
- rostverko planą ir armavimo specifikaciją
- pertvarų pamatų palną ir armavimo specifikaciją
- sienų ir kolonų planą bei detalizuotus kolonų mazgus
- sijų planą
- stogo sijų planą
- stogo gegnių planą
- skersinius pastato pjūvius
- cokolio mazgų detalizaciją
- vitrinų ir langų mazgų detalizaciją
- stogo mazgų detalizaciją
- sienų ir grindų mazgų detalizaciją
Kas įeina į architektūros projektą?
Projekto architektūros byla reikalinga tam, kad statytojas žinotų pagrindinius namo parametrus, apdailos medžiagas, galėtų vizualiai suprasti namo išplanavimą, dydį ir tūrį.
Šioje byloje rasite brėžinius:
- pertvarų planą,
- baldų planą,
- stogo planą,
- namo fasadų išklotines,
- du pastato pjūvius,
- lauko langų specifikaciją,
- durų specifikaciją,
- tris skirtingus sandėliukų variantus,
- eksterjero vizualizacijas.
Šią projekto dalį sudaro 17 puslapių.
Kas įeina į techninį interjero projektą?
Techninis interjero projektas labai svarbus įsirenginėjant namą be interjero dizainerio pagalbos. Šiame projekte yra sudėti visi brėžiniai, reikalingi techniškai teisingam interjero projektui. Čia paliekama laisvė kliento vaizduotei, jūs pats pasirinksite apdailos medžiagas, šviestuvus ir baldus, o iš mūsų gausite techninę informaciją, pavyzdžiui kurioje konkrečioje vietoje turi būti sumontuotas valgomojo šiestuvas virš stalo.
Techninėje interjero byloje rasite šiuos brėžinius:
- baldų išdėstymo planas
- santechnikos prietaisų planas su pririšimais
- grindų dangų, sienų ir lubų apdailos planas (su apdailos kiekiais)
- šviestuvų tipų ir valdymo planas
- el. lizdų planas
- aktualios sienų išklotinės (virtuvės, vonios ir pagal poreikį kitų patalpų).
Atkreipiame dėmesį, kad grindų, sienų apdailos bei lubų brėžiniuose yra nurodomas apdailos kiekis ir tipas (pvz. parketlentės, plytelės, apdailinės dailylentės). Konkretūs gaminiai yra specifikuojami tik santechnikos ir apšvietimo, ŠVOK bylų prieduose. Projekte pateikiamos gaminamų baldų schemos bei perkamų baldų (pvz. sofų, stalų) rekomenduojami išmatavimai.
Ar šiam projektui reikalingas statybą leidžiantis dokumentas?
Pagal LR įstatymus statybą leidžiantis dokumentas (SLD) yra privalomas visiems naujai statomiems gyvenamosios paskirtiems namams.
Ar jūs galite parengti statybą leidžiantį dokumentą?
UAB Šilta šiaurė teikia SLD gavimo paslaugą visiems savo projektams.
SLD gavimo kaina tipiniam projektui Garnys, jei nėra išskirtinių papildomų derinimų (KPD zona ar pan.), yra 3000 eur + PVM.













